Huutokaupat.com
Hae sivustolta

Kiinteistökehitys Naistinki Oy myy

Kiinteistö laajalla piha-alueella yrityskäyttöön, Mikkeli

Katsottu 1 188 kertaa

1 / 8Myydään eniten tarjoavalle

Myydään

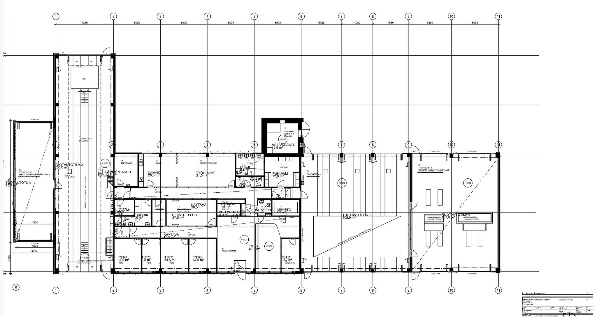
Myydään teollisuus- / toimistorakennus (491-020-0045-0002). Rakennuksessa on katsastusasemalle tyypilliset läpiajettavat ajoneuvohallit, avointa hallitilaa, toimistotilaa ja suuri asfaltoitu piha-alue. Rakennuksen pinta-ala on 1 089m2. Rakennus on vuokrattu yrityskäyttöön, tietoja vuokrauksesta saa ottamalla yhteyttä. Kiinteistön tonttikoko on 13 621m2, jonka tehokkuusluku on 0,27 eli rakennusoikeutta on 3 678m2.


Rakennus on rakennettu alunperin katsastuskäyttöön 1985 ja saneerattu 2001 kokoonpanevan teollisuuden käyttöön. Tällä hetkellä rakennus toimii enimmäkseen varastointikäytössä.


MK:n 2 luvun 9 §:n 2 momentin säännös yksilöitävyydestä; Ostaja vastaa mahdollisista aiemman toiminnan aiheuttamista ja niiden vaatimista puhdistustoimenpiteistä sekä rakennuksen, että maaperän suhteen. Myyjällä ei ole tiedossa, että kiinteistöllä olisi harjoitettu rakenteita pilaavaan toimintaa (katsastustoiminta ja myöhemmin kevytteollisuus sekä varastointi. Ajoneuvokorjaustoimintaa ei ole ollut). Asiasta saa lisätietoja ottamalla yhteyttä.


Kohde sijaitsee alueella, jossa valtiolla on etuosto-oikeus.


Kohteen kaava löytyy myös Mikkelin kaupungin kaavakarttasivuilta.


Lisätietoja kyosti.ylijoki@naistinki.fi


Myyntiehdot

Myyjä sitoutuu myymään kohteen korkeimman tarjouksen tekijälle.

Kohde myydään käyttäjien välisenä kauppana. Huutokaupat.com ei toimi kaupan osapuolena.

Tarjoukset tehdään annettuun ajankohtaan mennessä tämän sivuston kautta. Korkein tarjous on se tarjous, jonka myyjä on korkeimpana hyväksynyt. Tarjouksen tehnyt hyväksyy nämä myyntiehdot suorittaessaan huudon.

Kohteeseen tutustuminen

Huutajalla on ennen tarjouksen tekemistä velvollisuus tutustua kyseiseen kiinteistöön, dokumentteihin ja asiakirjoihin. Ostaja ei jälkikäteen voi vedota sellaiseen seikkaan, joka olisi ennakkotarkastuksessa voitu havaita.

Myyjän antamat tiedot

Kiinteistökehitys Naistinki Oy vakuuttaa antaneensa ostajalle kaikki tiedot, jotka myyjä tietää ja joiden voidaan olettaa vaikuttavan kauppaan.

Kaupan solmiminen

Kiinteistön kauppa on tehtävä maakaaressa säädetyssä muodossa. Kauppakirjan allekirjoittamisajankohta ja paikka sovitaan ostajan kanssa erikseen. Kauppahinnan maksaminen tapahtuu kaupantekotilaisuudessa. Kaupanvahvistajan palkkion maksaa myyjä.

Muut kustannukset

Ostaja vastaa kulloinkin voimassa olevan verokäytännön mukaisesta varainsiirtoverosta.

Kaupasta vetäytyminen

Osapuolen, joka kieltäytyy tekemästä kauppaa, on maakaaren perusteella korvattava toiselle osapuolelle ilmoittelusta, kiinteistöön tutustumisesta sekä muista kaupantekoon liittyvistä tarpeellisista toimista aiheutuneet, kohtuulliset kustannukset.

Kiinteistökehitys Naistinki Oy

Ei muita kohteita huudettavana juuri nyt.

Ilmoittajalla ei ole yhtään palautetta viimeisen vuoden ajalta

Aikaa jäljellä

Ei tarjouksia

Lähtöhinta 161 000 €

Ei vähennettävää arvonlisäveroa

Kirjaudu sisään, jotta voit huutaa

Tee tunnus

Huutokauppa päättyy la 29.11.2025 klo 19.30, tai 3 min viimeisen tarjouksen jälkeen

Tarjouksia
0 kpl
Tarjoajia
0 kpl
Loading...

Kohdenumero: 5811267

Katsottu 1 188 kertaa

Kohteen sijainti

Rahtitie 9, 50150 Mikkeli

Avaa kartta

Tiedustelut

Kohteeseen tutustuminen

Sopimuksen mukaan

Maksutapa

Maksutapa sovitaan myyjän kanssa erikseen.

Päivitetty viimeksi

16.10.2025 klo 15.33

Jaa kohde kaverillesi

Ilmianna ilmoitus

Kiinteistökehitys Naistinki Oy

Ei muita kohteita huudettavana juuri nyt.

Ilmoittajalla ei ole yhtään palautetta viimeisen vuoden ajalta