Huutokaupat.com
Hae sivustolta

Pirkanmaan Laatuvälitys Oy (SKVL jäsen) myy

Uniikki toimitilakokonaisuus Tampereen paraatipaikalta, Tampere

Katsottu 220 kertaa

1 / 40

Myydään

Velkaosuus
3 135,35 €

Uniikki toimitilakokonaisuus Tampereen paraatipaikalta


Tarjolla harvinainen mahdollisuus hankkia kokonainen toimistorakennus saunatiloineen aivan Tampereen keskustan ytimessä!


Kohde sijaitsee näkyvällä paikalla Satakunnankadun ja Kuninkaankadun kulmassa – alueella, jossa yhdistyvät erinomaiset kulkuyhteydet, keskustan palvelut ja korkea profiili.


Myydään kokonaisuutena seuraavat osakesarjat:

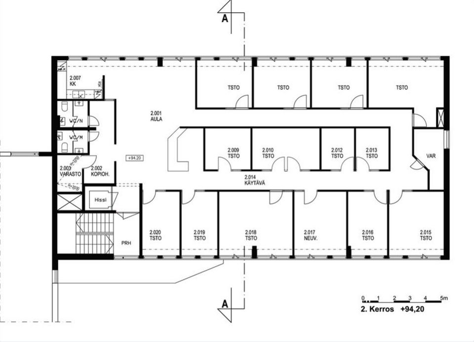
  • Toimisto A1, 2. krs – 283 m² (5996-8441)

  • Toimisto A2, 3. krs – 283 m² (8442-10887)

  • Toimisto A3, 4. krs – 283 m² (10888-13333)

  • Sauna A4, 5. krs – 107 m² (13334-14566)

  • Neliöt yhteensä 956 m²


Kolmessa toimistokerroksessa on useita erikokoisia työhuoneita, sosiaalitilat sekä keittiö jokaisessa kerroksessa. Ylimmän kerroksen edustava sauna- ja kokoustila on saavutettavissa myös hissillä – täydellinen tila yrityksen edustamiseen, tapahtumiin tai henkilöstön käyttöön.


Tilat tarjoavat runsaasti mahdollisuuksia muokata kokonaisuus omiin tarpeisiin – esimerkiksi yrityksen pääkonttoriksi, toimitilakokonaisuudeksi tai kiinteistökehityskohteeksi.

Tilat ovat Kiinteistö Oy Pumpulikulman hallinnassa, ja saunatila on yhtiön vuokraama. Uuden omistajan vastuu erääntyneistä yhtiövastikkeista ja niihin rinnastettavista maksuista on 161 085,73 € (tilannepäivä 20.10.2025).


Huom! Kohde tarjoaa myös kiinnostavan mahdollisuuden kiinteistökehittäjälle – kaavamuutoksen kautta tiloihin voisi kehittää uutta käyttötarkoitusta.

Lisätietoja ja kehitysmahdollisuuksista antaa välittäjä.


Huutajan on hyvä huomioida isännöitsijätodistuksessa kohta 11.1. Seikat, jotka voivat vaikuttaa olennaisesti yhtiön taloudelliseen tilaan tai sen toimintaan taikkaosakehuoneiston käyttämiseen tai käyttökustannuksiin. Liiketilojen osakkeet (5996-8441), (8442-10887), (10888-13333) ja (13334-14566) on haltuunotettu maksamattomien vastikkeiden vuoksi. Yhtiön maksuvalmiuden turvaamiseksi peritään korotettua hoitovastiketta 0,8954€/osake/kk. Hoitovastike tulee laskemaan, kun vastikesaatavat on peritty. ARVIO tulevasta hoitovastikkeesta on noin 0,65 €/osake/kk.


Ota yhteyttä ja varaa näyttö:


Pasi Rasku, LKV
0400 171 191
pasi.rasku@muutoslkv.fi
www.muutoslkv.fi

Myyntiehdot

Myyjä pidättää oikeuden hyväksyä tai hylätä korkein tarjous.

Kohde myydään käyttäjien välisenä kauppana. Huutokaupat.com ei toimi kaupan osapuolena.

Ostaja ottaa 3 135,35 € suuruisen velkaosuuden vastatakseen.

Pirkanmaan Laatuvälitys Oy (SKVL jäsen) pidättää oikeuden hyväksyä tai hylätä korkein tarjous tai pyytää lisäselvitystä.


Ilmoituksen kuvaukset ovat ainoastaan myyjän arvioita myytävästä kohteesta. Pirkanmaan Laatuvälitys Oy (SKVL jäsen) ja ostaja sitoutuvat kirjaamaan kaikki tarjoukset järjestelmään. Huutokauppaan osallistuvan onitse tutustuttava kohteeseen ja siihen kuuluvaan markkinointimateriaaliin ennen sitovan tarjouksen tekemistä. Huutajan tulee tutustua kohteeseen Pirkanmaan Laatuvälitys Oy:nesittelemänä. Tarjouksen jättämällä huutaja hyväksyy kohteen siinä kunnossa kuin se huudon tekijän siihen tutustuessa oli. Huudot tehdään Huutokauppa.com-palvelussa annettuun ajankohtaan mennessä.


Korkeimman tarjouksen tehnyt sitoutuu tekemään huutokaupan päätyttyä kirjallisen ostotarjouksen Pirkanmaan Laatuvälitys on välityksellä.

Huutokaupassa tehty tarjous ei sellaisenaan ole vielä sitova tarjous! Huutokaupan päätyttyä Pirkanmaan Laatuvälitys Oy:n välittäjä on yhteydessä korkeimman huudon tehneeseen kirjallisen tarjouksen laatimiseksi sekä kauppaprosessin loppuun saattamiseksi.


Mikäli huutaja vetäytyy hyväksytystä huudosta, tulee hänen korvata myyjälle epäonnistuneen huutokaupan järjestämisestä aiheutuneina kustannuksina 4% velattomasta kauppahinnasta tai vähintään 20 000 € tai mikäli myyjä hyväksyy seuraavaksi tulleen huudon, huutojen välinen erotus, mikäli se on suurempi kuin 1 000 €.


Ostaja maksaa kauppahinnan myyjän ilmoittamalle pankkitilille kauppakirjanallekirjoitustilaisuudessa. Ostaja saa kohteen omistus- ja hallintaoikeuden kauppahinnan maksamisen ja kauppakirjan allekirjoittamisen jälkeen.

Kaupanteossa käytetään Pirkanmaan Laatuvälitys Oy:n laatimaa kauppakirjaa. Pirkanmaan Laatuvälitys Oy hankkii kohteeseen liittyvät todistukset. Kauppakirjan allekirjoittamisajankohta sovitaan ostajan kanssa erikseen. Ostaja vastaa varainsiirtoverosta kaupantekotilaisuudessa tai antaa luotettavan selvityksen varainsiirtoverovapaudestaan.


Pirkanmaan Laatuvälitys Oy (SKVL jäsen) ei vastaa palveluntarjoajan järjestelmän toimivuudesta. Korkein tarjous on se tarjous, jonka palveluntarjoajan järjestelmä on korkeimpana hyväksynyt. Tarjouksen tekijä hyväksyy nämä myyntiehdot suorittaessaan huudon huutokaupat.com-palvelussa.


Kaikki tarjoukset rekisteröidään julkisiksi kohteen ilmoitukseen.

Tiedostot

  • Dokumentit Kiinteistö Oy Pumpulinkulma.pdf (vaatii sisäänkirjautumisen)
  • Myyntiesite Satakunnankatu 24, toimisto.pdf (vaatii sisäänkirjautumisen)
  • Istod toimisto 1.pdf (vaatii sisäänkirjautumisen)
  • Istod toimisto 2.pdf (vaatii sisäänkirjautumisen)
  • Istod toimisto 3.pdf (vaatii sisäänkirjautumisen)
  • Istod sauna.pdf (vaatii sisäänkirjautumisen)
  • Satakunnankatu 24 kaava+määr.pdf (vaatii sisäänkirjautumisen)

Pirkanmaan Laatuvälitys Oy (SKVL jäsen)

Ilmoituksia tällä hetkellä 2 kpl

Ilmoittajalla ei ole yhtään palautetta viimeisen vuoden ajalta

Aikaa jäljellä

Ei tarjouksia

Lähtöhinta 500 000 €

Ostaja ottaa vastatakseen velkaosuuden

Kirjaudu sisään, jotta voit huutaa

Tee tunnus

Huutokauppa päättyy su 07.12.2025 klo 21.00, tai 3 min viimeisen tarjouksen jälkeen

Tarjouksia
0 kpl
Tarjoajia
0 kpl
Loading...

Kohdenumero: 5834538

Katsottu 220 kertaa

Kohteen sijainti

Satakunnankatu 24, 33210 Tampere

Avaa kartta

Tiedustelut

Kohteeseen tutustuminen

Sopimuksen mukaan, Kiinteistönvälittäjä Pasi Rasku 0400171191 tai pasi.rasku@muutoslkv.fi

Maksutapa

Maksutapa sovitaan myyjän kanssa erikseen.

Päivitetty viimeksi

24.10.2025 klo 13.54

Jaa kohde kaverillesi

Ilmianna ilmoitus

Pirkanmaan Laatuvälitys Oy (SKVL jäsen)

Ilmoituksia tällä hetkellä 2 kpl

Ilmoittajalla ei ole yhtään palautetta viimeisen vuoden ajalta