Huutokaupat.com
Hae sivustolta

Horisontti Group Oy myy

Pintaremontoijan unelma rivitalokolmio!, Rovaniemi

Katsottu 221 kertaa

1 / 12Myydään eniten tarjoavalle

Myydään

Talotyyppi
Kerrostalo
Huoneita
3h
Asuinpinta-ala
75,5 m²
Rakennusvuosi
1989
Hoitovastike
271,80 €
Rahoitusvastike
124,58 €
Yhtiövastike yhteensä
396,38 €
Velkaosuus
9 426,94 €
Kaupat viimeistään
30.11.2025
Käsiraha
1 000 €

Nyt myydään pintaremonttia vaativa 75,5m2 kolmio osoitteesta Rekimatka 29, Rovaniemi korkeimmalle huutajalle!


Tämä kohde soveltuu sinulle, joka etsit vielä kohdetta Rovaniemen lyhytvuokrauksen talvisesonkiin tai asuntoa pitkäaikaisvuokraukseen.


Rovaniemen matkailun kasvun myötä kaupungin on sijoittunut ensimmäiseksi Suomen Vuokranantajien kaupunkirankingissa!


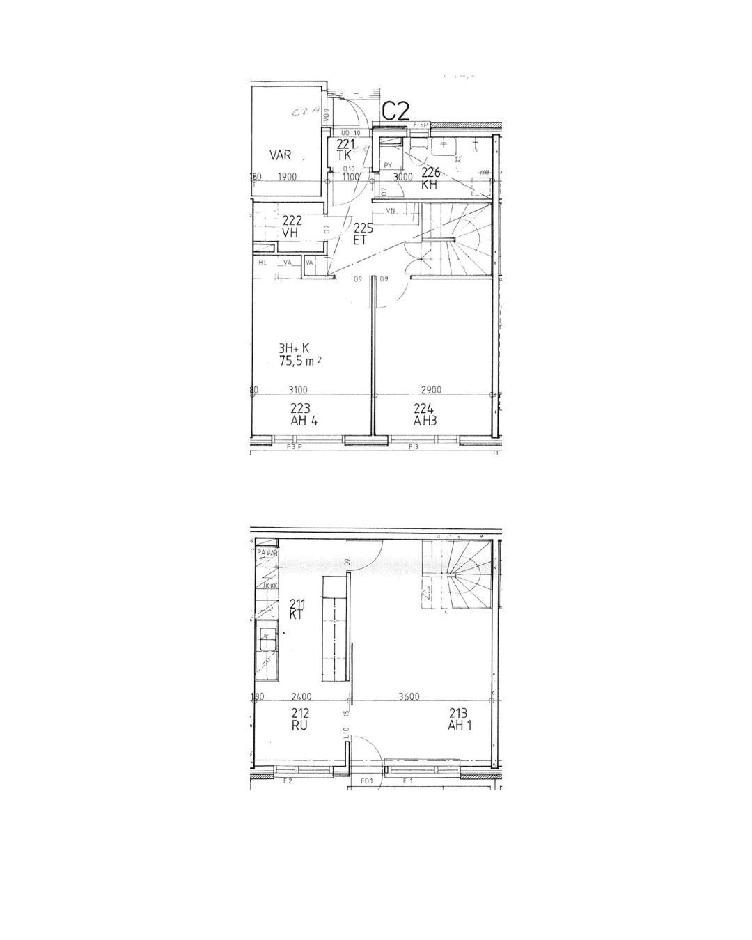
Huoneisto on kahdessa tasossa ja sisäänkäynti rivitalokolmioon tapahtuu yläkerrasta, jossa on huoneiston kaksi makuuhuonetta ja kylpyhuone.


Portaita pitkin pääsee alakertaa, jossa on tilava olohuone, pääsy takapihalle sekä keittö ja ruokailutila.


Tämän kokoisten huoneistojen markkinavuokra on 830-850€/kk, joka tarkoittaa 6698-6938€ vuosituottoa!


Noin 50 500€ huutohinnalla eli 60 000€ velattomalla hinnalla tämä tarkoittaa jopa 11,5% vuokratuottoa!


Kohde sijaitsee osoitteessa Rekimatka 29, Rovaniemi, joka sijaitsee rauhallisella Ounasrinteen asuinalueella ja lähellä Ounasvaaran palveluita ja isoija työnantajia sekä noin 4 kilometria Rovaniemen keskustasta.


As Oy Rovaniemen Rekimatka 29 on 1989 valmistunut taloyhtiö, jossa on 56 huoneistoa. Taloyhtiö sijaitsee Rovaniemen kaupungin vuokratontilla, jossa sopimusta on vuoteen 2047 saakka.


Suoritetut Korjaukset ja Kunnossapitotyöt

Vesikatteen uusiminen (A-H talot) - 2021  

Kaukolämmön alajakokeskuksen uusiminen (A-H talo) - 2018  

Tarkistusluukkujen korotus vesikatolla - 2017  

Huoneistokohtaisia vesimittareita uusittu vuosittain tarpeen mukaan


Joten nyt kipin kapin huutamaan itsellesi seuraavaa potentiaalista tuottokohdetta!









Myyntiehdot

Myyjä sitoutuu myymään kohteen korkeimman tarjouksen tekijälle.

Kohde myydään käyttäjien välisenä kauppana. Huutokaupat.com ei toimi kaupan osapuolena.

Tarjoukset tehdään myyntihinnasta ylöspäin.

Asunnon ostaja ottaa 9 426,94 € suuruisen huoneiston velkaosuuden vastatakseen.

Korkeimman tarjouksen tehneen henkilön on tarjouksen hyväksymisen jälkeen maksettava käsiraha 1 000 € kahden (2) vuorokauden sisällä.

Tarjoukset tehdään annettuun ajankohtaan mennessä. Korkein tarjous on se tarjous, jonka myyjä on korkeimpana hyväksynyt. Huutokauppaan voi osallistua myös henkilökohtaisesti paikan päällä jättämällä myyjälle tarjouksen. Horisontti Group Oy ja ostaja sitoutuvat kirjaamaan kaikki tarjoukset järjestelmään. Tarjouksen tehnyt hyväksyy nämä myyntiehdot suorittaessaan huudon.

Kohteeseen tutustuminen

Huutajalla on ennen tarjouksen tekemistä velvollisuus tutustua kyseiseen huoneistoon, yhtiötä koskeviin dokumentteihin ja asiakirjoihin. Ostaja ei jälkikäteen voi vedota sellaiseen seikkaan, joka olisi ennakkotarkastuksessa voitu havaita.

Myyjän antamat tiedot

Horisontti Group Oy vastaa kohteeseen liittyvien asiakirjojen oikeellisuudesta ja ajantasaisuudesta. Horisontti Group Oy vakuuttaa antaneensa ostajalle kaikki tiedot, jotka myyjä tietää ja joiden voidaan olettaa vaikuttavan kauppaan.

Kaupan solmiminen

Kauppakirjan allekirjoittamisajankohta ja paikka sovitaan ostajan kanssa erikseen. Kauppahinnan maksaminen ja osakesiirto tapahtuvat kaupantekotilaisuudessa.

Muut kustannukset

Ostaja vastaa kulloinkin voimassa olevan verokäytännön mukaisesta varainsiirtoverosta.

Kaupasta vetäytyminen

Jos kauppa jää syntymättä tarjouksen tekijän puolella olevasta syystä, myyjällä on oikeus saada sovittu vakiokorvaus.

Tiedostot

  • Iskari C 6 allekirjoitettu.pdf (vaatii sisäänkirjautumisen)
  • C6 pohja.pdf
  • Kunnossapitotarveselvitys 2025 (1).pdf
  • Talousarvio 2025 (1).pdf
  • Tilintarkastuskertomus 2024 (2).pdf
  • Yhtiöjärjestys (4).pdf
  • Tasekirja 2024 (1).pdf

Horisontti Group Oy

Ilmoituksia tällä hetkellä 2 kpl

Ilmoittajalla ei ole yhtään palautetta viimeisen vuoden ajalta

Aikaa jäljellä

Ei tarjouksia

Lähtöhinta 0 €

Ostaja ottaa vastatakseen huoneiston velkaosuuden

Kirjaudu sisään, jotta voit huutaa

Tee tunnus

Huutokauppa päättyy su 16.11.2025 klo 19.00, tai 3 min viimeisen tarjouksen jälkeen

Tarjouksia
0 kpl
Tarjoajia
0 kpl
Loading...

Kohdenumero: 5839806

Katsottu 221 kertaa

Kohteen sijainti

Rekimatka 29, 96440 Rovaniemi

Avaa kartta

Tiedustelut

Kohteeseen tutustuminen

Sopimuksen mukaan

Maksutapa

Maksutapa sovitaan myyjän kanssa erikseen.

Päivitetty viimeksi

27.10.2025 klo 6.38

Jaa kohde kaverillesi

Ilmianna ilmoitus

Horisontti Group Oy

Ilmoituksia tällä hetkellä 2 kpl

Ilmoittajalla ei ole yhtään palautetta viimeisen vuoden ajalta