KOTIX L- Saunatupa väliterassilla, täysin valmis pihasauna, Uurainen
Kotix Oy myy
26 900 €
Lähtöhinta
6 t 14 min
Aikaa jäljellä
YIT Housing Oy (SKVL jäsen) myy
Katsottu 37 kertaa
Etsitkö autopaikkaa itsellesi tai olisitko kiinnostunut ostamaan paikan sijoituskäyttöön ja vuokraamaan paikan lähialueen asukkaille tai töissä käyville?
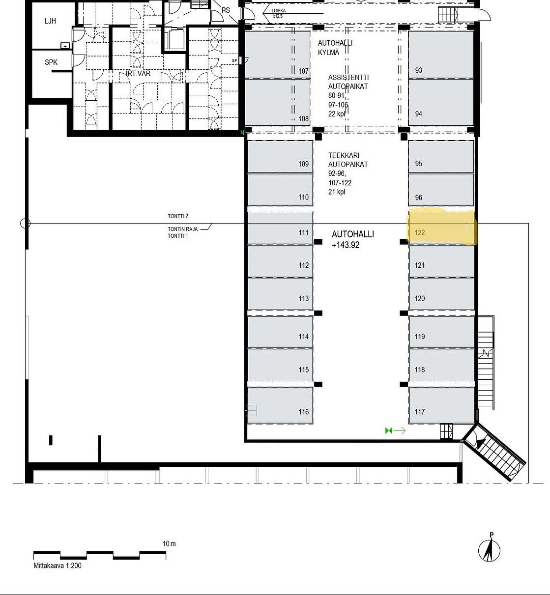
Autohalli sijaitsee asuinkorttelin kellarikerroksessa, johon sisään- ja ulosajo tapahtuu Tutkijankadun puolelta. Jalankulkuyhteys autopaikalle on Latsaruksenpuiston puolelta.
Kaupan kohteena olevan autopaikan numero on AH 122
Autopaikalla on lämmityspistoke, ei sähkö- tai hybridiauton latausmahdollisuutta.
Autohallipaikka myydään Asunto Oy Tampereen Teekkarin osakesarjasta.
Myyjä pidättää oikeuden hyväksyä tai hylätä korkein tarjous.
Kohde myydään käyttäjien välisenä kauppana. Huutokaupat.com ei toimi kaupan osapuolena.
Ostaja ottaa 13 025,88 € suuruisen velkaosuuden vastatakseen.
Tarjoukset tehdään annettuun ajankohtaan mennessä. Korkein tarjous on se tarjous, jonka myyjä on korkeimpana hyväksynyt. YIT Housing Oy (SKVL jäsen) ja ostaja sitoutuvat kirjaamaan kaikki tarjoukset järjestelmään. Tarjouksen tehnyt hyväksyy nämä myyntiehdot suorittaessaan huudon.
Kohteeseen tutustuminen
Huutajalla on ennen tarjouksen tekemistä velvollisuus tutustua myytävään autopaikkaan, dokumentteihin ja asiakirjoihin. Ostaja ei jälkikäteen voi vedota sellaiseen seikkaan, joka olisi ennakkotarkastuksessa voitu havaita.
Autopaikkaa esittelee YIT:n asuntomyynti p. 020 433 4635, asuntomyynti.tampere@yit.fi.
Myyjän antamat tiedot
YIT Housing Oy (SKVL jäsen) vakuuttaa antaneensa ostajalle kaikki tiedot, jotka myyjä tietää ja joiden voidaan olettaa vaikuttavan kauppaan.
Kaupan solmiminen
Kauppahinta on maksettava kokonaisuudessaan kaupantekotilaisuudessa.
Autopaikkojen omistus- ja hallintaoikeus siirtyy kaupantekotilaisuudessa tai muutoin ostajan ja myyjän kesken sovitusti.
Muut kaupan ehdot sovitaan tarkemmin myyjän ja ostajan kesken käytävässä neuvottelussa.
Muut kustannukset
Ostaja vastaa autopaikoista maksettavasta vastikkeesta kauppakirjan mukaisesti. Yhtiövastike on 30 €/kk ja rahoitusvastike 95,38 €/kk isännöitsijäntodistuksen mukaisesti. Rahoitusvastike sisältää koron lyhennyksen osuuden, ensimmäinen lyhennys 12/2025.
Myytäviin osakkeisiin kohdistuu yhtiölainaa 13 025,88 euroa (pvm. 31.10.2025) isännöitsijäntodistuksen 17.11.2025 mukaisesti. Ostaja ottaa vastattavakseen autopaikkaan kohdistuvan yhtiölainan kokonaisuudessaan.
Ostaja vastaa kaupasta maksettavasta varainsiirtoverosta kulloinkin voimassa olevan verokäytännön mukaisesti.
Kaupasta vetäytyminen
Osapuolen, joka kieltäytyy tekemästä kauppaa, on korvattava toiselle osapuolelle ilmoittelusta, kohteeseen tutustumisesta sekä muista kaupantekoon liittyvistä tarpeellisista toimista aiheutuneet, kohtuulliset kustannukset.
Aikaa jäljellä
Kohdenumero: 5896077
Katsottu 37 kertaa
YIT:n asuntomyynti p. 020 433 4635, asuntomyynti.tampere@yit.fi.
Maksutapa sovitaan myyjän kanssa erikseen.
19.11.2025 klo 12.53
Kotix Oy myy
26 900 €
Lähtöhinta
6 t 14 min
Aikaa jäljellä
Kotix Oy myy
22 900 €
Lähtöhinta
6 t 14 min
Aikaa jäljellä
Kotix Oy myy
22 500 €
Lähtöhinta
1 pv 6 t
Aikaa jäljellä
Ahosen Palvelut Oy myy
2 000 €
2 tarjousta
1 pv 6 t
Aikaa jäljellä
Macea Machinery myy
150 €
3 tarjousta
2 pv 6 t
Aikaa jäljellä
Metsähallitus JHT myy
600 €
12 tarjousta
2 pv 6 t
Aikaa jäljellä
Metsähallitus JHT myy
150 €
3 tarjousta
2 pv 6 t
Aikaa jäljellä
TAURIAINEN SAMULI VELI ALBERT myy
1 000 €
Lähtöhinta
5 pv 4 t
Aikaa jäljellä
Koneks Oy myy
780 €
26 tarjousta
5 pv 6 t
Aikaa jäljellä
Oy Simons Element Ab myy
200 €
1 tarjous
6 pv 1 t
Aikaa jäljellä
K. Koivuniemi Oy myy
200 000 €
1 tarjous
7 pv 4 t
Aikaa jäljellä
Terramare Oy myy
100 €
4 tarjousta
9 pv 6 t
Aikaa jäljellä
Koneks Oy myy
750 €
7 tarjousta
10 pv 5 t
Aikaa jäljellä
Tackork Gård & Marina Oy myy
34 000 €
Lähtöhinta
11 pv 4 t
Aikaa jäljellä
Espoon Sähköpojat Oy myy
120 €
6 tarjousta
12 pv 5 t
Aikaa jäljellä
Puukuljetus Vesala Oy myy
1 000 €
Lähtöhinta
15 pv 5 t
Aikaa jäljellä
Catella Property Oy myy
60 000 €
30 tarjousta
26 pv 22 t
Aikaa jäljellä
Haapa Rahastot Oy myy
6 000 €
Lähtöhinta
9 pv 4 t
Aikaa jäljellä
Haapa Rahastot Oy myy
300 €
Lähtöhinta
9 pv 6 t
Aikaa jäljellä
Jaremotors Oy myy
0 €
Lähtöhinta
13 pv 6 t
Aikaa jäljellä