Ulosmitattu metsäkiinteistö Laitilassa / Utmätt skogsfastighet i Letala, Laitila
Ulosottolaitos, Porin toimipaikka myy
26 000 €
35 tarjousta
1 t 25 min
Aikaa jäljellä
Katsottu 170 kertaa
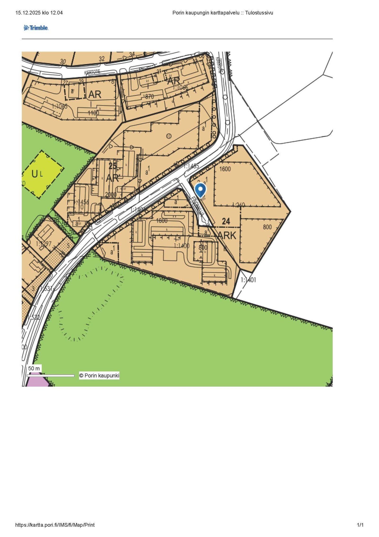
Myydään tontti Noormarkusta eniten tarjoavalle!
Einonkuja, tontti 1:260, 1600+800kem
ARK=rivitalojen tai asuinkerrostalojen korttelialue.
Rakennuksiin ei saa rakentaa maanpäällistä kellarikerrosta.
Yhteystiedot Juha Blom 0400 611688
Myyjä sitoutuu myymään kohteen korkeimman tarjouksen tekijälle.
Kohde myydään käyttäjien välisenä kauppana. Huutokaupat.com ei toimi kaupan osapuolena.
Tarjoukset tehdään annettuun ajankohtaan mennessä. Korkein tarjous on se tarjous, jonka myyjä on korkeimpana hyväksynyt. Kiinteistönvälitys Otso LKV Oy (SKVL jäsen) ja ostaja sitoutuvat kirjaamaan kaikki tarjoukset järjestelmään. Tarjouksen tehnyt hyväksyy nämä myyntiehdot suorittaessaan huudon.
Kohteeseen tutustuminen
Huutajalla on ennen tarjouksen tekemistä velvollisuus tutustua kyseiseen kiinteistöön, dokumentteihin ja asiakirjoihin. Ostaja ei jälkikäteen voi vedota sellaiseen seikkaan, joka olisi ennakkotarkastuksessa voitu havaita.
Myyjän antamat tiedot
Kiinteistönvälitys Otso LKV Oy (SKVL jäsen) vakuuttaa antaneensa ostajalle kaikki tiedot, jotka myyjä tietää ja joiden voidaan olettaa vaikuttavan kauppaan.
Kaupan solmiminen
Kiinteistön kauppa on tehtävä maakaaressa säädetyssä muodossa. Kauppakirjan allekirjoittamisajankohta ja paikka sovitaan ostajan kanssa erikseen. Kauppahinnan maksaminen tapahtuu kaupantekotilaisuudessa. Kaupanvahvistajan palkkion maksavat myyjä ja ostaja puoliksi.
Muut kustannukset
Ostaja vastaa kulloinkin voimassa olevan verokäytännön mukaisesta varainsiirtoverosta.
Kaupasta vetäytyminen
Osapuolen, joka kieltäytyy tekemästä kauppaa, on maakaaren perusteella korvattava toiselle osapuolelle ilmoittelusta, kiinteistöön tutustumisesta sekä muista kaupantekoon liittyvistä tarpeellisista toimista aiheutuneet, kohtuulliset kustannukset.
Aikaa jäljellä
Kohdenumero: 5963333
Katsottu 170 kertaa
Sopimuksen mukaan
Maksutapa sovitaan myyjän kanssa erikseen.
17.12.2025 klo 14.33
Ulosottolaitos, Porin toimipaikka myy
26 000 €
35 tarjousta
1 t 25 min
Aikaa jäljellä
Ulosottolaitos, Kymenlaakson toimipaikat myy
30 000 €
34 tarjousta
1 t 25 min
Aikaa jäljellä
Ulosottolaitos, Porin toimipaikka myy
1 750 €
7 tarjousta
19 t 25 min
Aikaa jäljellä
Ulosottolaitos, Oulu realisointi (Oulu, Raahe, Kajaani) myy
866 €
4 tarjousta
22 t 25 min
Aikaa jäljellä
Ulosottolaitos, Oulu realisointi (Oulu, Raahe, Kajaani) myy
28 000 €
103 tarjousta
1 pv 2 t
Aikaa jäljellä
Asianajotoimisto Antti Kallio Ky myy
175 000 €
8 tarjousta
1 pv 21 t
Aikaa jäljellä
Kostiainen Company Oy myy
4 600 €
12 tarjousta
2 pv 3 t
Aikaa jäljellä
Najo Oy myy
1 500 €
3 tarjousta
10 pv 4 t
Aikaa jäljellä
Ulosottolaitos, Etelä-Pohjanmaan ja Keski-Pohjanmaan toimipaikat myy
6 200 €
6 tarjousta
10 pv 20 t
Aikaa jäljellä
Kruununtilat Oy myy
19 500 €
Lähtöhinta
13 pv 3 t
Aikaa jäljellä
Ylä-Lapin Kodit Oy myy
7 500 €
5 tarjousta
13 pv 7 t
Aikaa jäljellä
Elisa Oyj myy
13 700 €
37 tarjousta
16 pv 23 t
Aikaa jäljellä
Elisa Oyj myy
2 099 €
4 tarjousta
16 pv 23 t
Aikaa jäljellä
Elisa Oyj myy
800 €
7 tarjousta
16 pv 23 t
Aikaa jäljellä
Elisa Oyj myy
900 €
8 tarjousta
17 pv 0 t
Aikaa jäljellä
Elisa Oyj myy
400 €
3 tarjousta
17 pv 0 t
Aikaa jäljellä
Elisa Oyj myy
400 €
3 tarjousta
17 pv 0 t
Aikaa jäljellä
Windline myy
50 000 €
6 tarjousta
28 pv 2 t
Aikaa jäljellä
Laukaan kunta myy
100 €
1 tarjous
31 pv 2 t
Aikaa jäljellä
Ulosottolaitos, Päijät-Häme / Kanta-Häme myy
600 €
2 tarjousta
32 pv 1 t
Aikaa jäljellä