Huutokaupat.com
Hae sivustolta

3

Miukin Kone Oy ilmoittaa, Huutokaupat.com myy

Hirsilato 16m2 suoraseinä 4000x4000, Tornio

Katsottu 318 kertaa

1 / 3Myydään eniten tarjoavalle

Myydään


Huudettavana 1 kpl 16m2 suoraseinäinen lato. Noudettavissa Juoksengista heti tai Torniosta n. 7- 10 päivää huutokaupan sulkeutumisesta.


HUOM!!! Latoon saatavana lisähinnasta kattopaketti (pelti/huopa), lattiapaketti (jämerä 42x145 lattia lankku!!!) tai 270mm korotuskerros. Nämä tulisivat myös samalla rahdilla. Lisätietoja Ari Ruonamaa 040-6826872 ari.ruonamaa@miukinkone.fi


TOIMITUSMAKSU NYT VAIN 190,- VAPAASTI AUTOSSA MANNER SUOMEEN, EI SISÄLLÄ PURKUA!! JOS TARVIT PURKUPALVELUN, SE ON TILATTAVA ERIKSEEN HNTAAN 315,-!!!!!!!


Tiedot valmistajan sivuilta:


Komea S16 Hirsilato sopii loistavasti varastoksi. Tämä piharakennus on suomalainen ja helppo kasata!

S16 on suora- ja umpiseinäinen 16m2 hirsilato. Se sopii erinomaisesti varastoksi, puiden säilytykseen, heinille, puutarhavälineille, mönkijälle, moottorikelkalle, puutarhakoneille, polkupyörille sekä kausitavaravarastoksi. Pariovien ansiosta saat isotkin tavarat helposti suojaan pihalatoon. Tarvittaessa lato toimitetaan puuosatoimituksena tilaamaasi osoitteeseen ja se on helppo kasata mukana tulevilla ohjeilla.

Toimitus ei sisällä vesikattolaudoitusta, vesikatemateriaalia, eikä lattiarakenteita (tilattava erikseen).

Suomalaiset, komeat, kestävät ja kätevät piharakennukset, hirsiladot, pihaladot, pihavarastot ja puuladot pihallesi tai mökille löydät meiltä.


Tuotetiedot:
- Umpiseinämalli (ei rakoja seinässä)
- Suorat päätyseinät ja suorat sivuseinät (42x145mm)
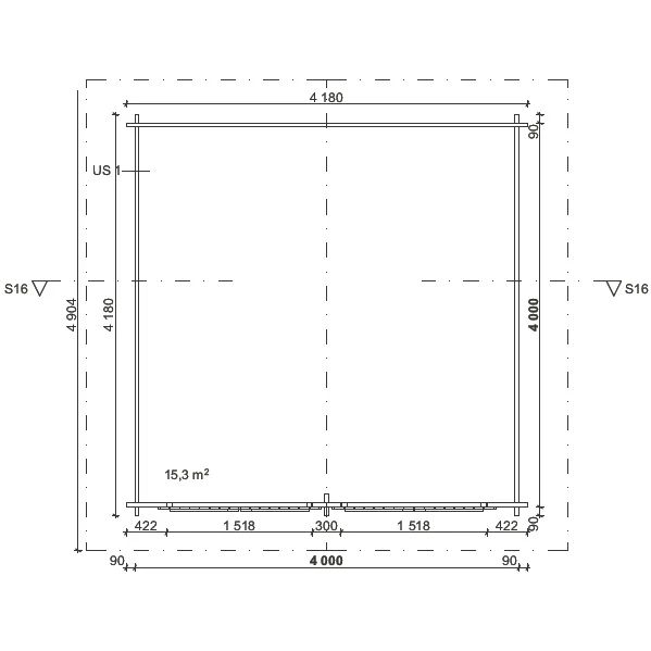
- Pohjan koko: leveys 4000 mm, pituus 4000

- Harjakorkeus 3000 mm
- Sivuseinäkorkeus 1850 mm
- Katon harjapituus 4864 mm (runko)
- Katon lapepituus 2895 mm
- Perustoimituspakkaus: 1 pkt / n.1300 kg

Toimituspakettiin sisältyy:
- Seinät ja kattokannattajat 42x145 kevythirsi
- Päätyräystäs 42x145
- Sivuräystäät 42x145
- Ovet
- Asennusohje
- Toimenpidelupakuvat

Toimitus ei sisällä:
- Vesikattolaudoitusta / vesikatemateriaalia (Tilattava erikseen)
- Lattiarakenteita (Tilattava erikseen)


Lisätietoja Ari Ruonamaa 040-6826872 ari.ruonamaa@miukinkone.fi

Myyntiehdot

Myyjä sitoutuu myymään kohteen korkeimman tarjouksen tekijälle.

Tämän kohteen myyjä on Huutokaupat.com. Miukin Kone Oy antaa Huutokaupat.comin puolesta kohteesta lisätietoja ja vastaa kohteen luovutuksesta. Kohde tulee aina maksaa Huutokaupat.com-sivustolla olevien verkkomaksupainikkeiden kautta tai Huutokaupat.comin laskulla. Jos kohdetta ei makseta Huutokaupat.comille, Huutokaupat.com ei hyväksy mitään vastuuta kaupasta.


Tutustuthan tähän huutokauppaan sovellettaviin Huutokaupat.com-kauppojen huutokauppaehtoihin, sekä myyntiehtoihin ennen tarjouksen tekemistä.


Ja huomaathan, että

  • huutokauppaan osallistuminen ilman ostoaikomusta on kiellettyä
  • sinun tulee tutustua kohteeseen ja siitä annettuihin tietoihin ennen tarjoamista (kohteet myydään muille kuin kuluttaja-asiakkaille sellaisena kuin se on-ehdoin)
  • käytettynä myytävien kohteiden kunto, käyttöikä ja päivitysmahdollisuudet eivät yleensä vastaa uutena myytäviä tavaroita - lisätietoja asiasta löydät täältä
  • kohde on maksettava yhden (1) arkipäivän kuluessa tarjouksen hyväksymisestä.

Tarkempia tietoja kohteesta ja sen myyntiin liittyvistä asioista voit tarvittaessa kysyä ilmoittajalta. Muissa asioissa voit olla yhteydessä Huutokaupat.comin asiakaspalveluun. Kuluttajien tekemiin kauppoihin liittyy kuluttajansuojalain mukainen peruuttamisoikeus, jota koskevat ehdot ja rajoitukset ilmenevät myyntiehdoista.

Miukin Kone Oy, kohteen ilmoittaja

3
2 ilmoitusta tällä hetkellä
48 myytyä kohdetta toukokuusta 2015 lähtien
Lue palautteita (2)

Huutokauppa ja tarjoaminen

Aikaa jäljellä

Ei tarjouksia

Lähtöhinta 0 €

Hintaan lisätään käsittely- ja toimituskulut

Kirjaudu sisään, jotta voit huutaa

Tee tunnus

Toimitustavat ja kulut

  • Toimitus 190 € (sis. pakkaus- ja lähetyskulut)
  • Nouto 99 €
  • Käsittelykulu 2 €

Toimituskulut koskevat toimitusta Manner-Suomeen.

Huutokauppa päättyy ke 21.01.2026 klo 20.00, tai 3 min viimeisen tarjouksen jälkeen

Tarjoukset

Tarjouksia
0 kpl
Tarjoajia
0 kpl
Loading...

Kohdenumero: 6019636

Katsottu 318 kertaa

Kohteen tiedot

Kohteen sijainti

Varikonkatu 3, 95420 Tornio

Avaa kartta

Tiedustelut

Kohteeseen tutustuminen

Ark. 10-17, la 10-14 Ari Ruonamaa 040-6826872

Maksutapa

Verkkopankkimaksu, maksuaika 24 tuntia tarjouksen hyväksymisestä.

Päivitetty viimeksi

16.1.2026 klo 13.11

Jaa kohde kaverillesi

Ilmianna ilmoitus

Miukin Kone Oy, kohteen ilmoittaja

3
2 ilmoitusta tällä hetkellä
48 myytyä kohdetta toukokuusta 2015 lähtien
Lue palautteita (2)

Muut katsoivat myös

PW-SPA Kylpytynnyri/palju 4-6 hengelle - täydellinen paketti suodatinpumpulla ja kannella, Vaasa

Plastweld Oy ilmoittaa, Huutokaupat.com myy

1 680 €

Lähtöhinta

2 pv 8 t

Aikaa jäljellä

Eniten tarjoavalle

Voisit pitää myös näistä