Moneen käyttöön taipuva rakennus Pellossa, Pello
Pellon kunta myy
20 500 €
10 tarjousta
1 pv 7 t
Aikaa jäljellä
Sastamalan kaupunki myy
Katsottu 100 kertaa
Myydään Kiikoiten entinen terveystalo
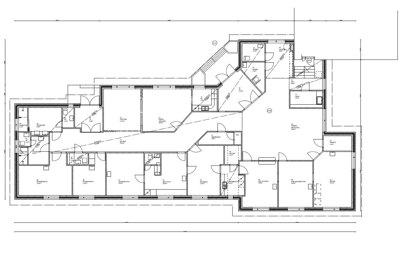
Myydään terveyskeskuksena toiminut kiinteistö Sastamalan Kiikoisissa Kiikoisjärven tuntumassa. Rakennuspaikka on noin 2 800 m2:n suuruinen määräala tilasta Kankainen 790-575-1-159 osoitteessa Kiikostentie 320. Ei omaa rantaa, mutta ranta kiinteistön kohdalla yhteisessä käytössä, missä on mm. venepaikkoja.
Rakennukseen kuuluu kaksi eri aikakausina rakennettua osaa; rakennuksen vanha osa on rakennettu vuonna 1952 ja laajennusosa vuonna 1984. Vanhassa osassa on tiloja kolmessa kerroksessa; kellarikerroksessa, toimistotilakerroksessa ja asuinkerroksessa. Lisäksi rakennuksessa on kylmä ullakkotila. Asuinkerroksessa on kaksi asuntoa. Laajennusosassa on yksi maanpäällinen kerros, joka on ollut terveysasemakäytössä. Vanhan osan kerrosala on noin 325 m2 ja laajennusosan kerrosala on noin 445 m2. Rakennuksessa on vesikiertoinen öljyllä toimiva lämmitys. Pannuhuone sekä yhteiset sauna- ja pesutilat ovat vanhan osan kellarikerroksessa. Öljysäiliö on maahan upotettuna rakennuksen ulkopuolella. Rakennus on tällä hetkellä yhtä toimistohuonetta lukuunottamatta tyhjillään. Toimistohuoneen vuokrasopimus siirtyy kaupassa uudelle omistajalle.
Rakennuksessa on maanvarainen betonialapohja, kantavat seinät kellarikerroksessa betonia, välipohjat betonirakenteisia, laajennusosan ulkoseinät ovat tiili-villa-tiili -rakenteita. Vanhan osan ulkoseinät ovat samoin tiilirakenteisia mutta lämmöneristyksestä ei ole varmuutta. Laajennusosan yläpohjat ovat pääosin puurakenteisia ja vanhassa osassa betonia. Vesikaton kantavat rakenteet puuta.
Rakennuksen vanhaan osaan on tehty osittaista peruskorjausta 1980-luvun loppupuolella, jolloin on uusittu LVIS-järjestelmiä, tehty tilamuutoksia ja rakenteiden peruskorjausta. Uusittuja rakenteita/rakenneosia ovat mm. ikkunat ja ulko-ovet, pintarakenteet ja julkisivuverhous. Vesikate on vaihdettu vastaavaan tiilikatteeseen kuin laajennusosalla. Laajennusosalla on sen valmistumisen jälkeen uusittu joitain lattiapäällysteitä ja vesikalusteita.
HUOM!
Tarjoukset tehdään annettuun ajankohtaan mennessä. Korkein tarjous on se tarjous, jonka myyjä on korkeimpana hyväksynyt. Myyjä ja ostaja sitoutuvat kirjaamaan kaikki tarjoukset järjestelmään. Myyjä varaa itselleen oikeuden hyväksyä tai hylätä tehdyt tarjoukset. Tarjouksen tehnyt hyväksyy nämä myyntiehdot suorittaessaan huudon.
Myyjä pidättää oikeuden hyväksyä tai hylätä korkein tarjous.
Kohde myydään käyttäjien välisenä kauppana. Huutokaupat.com ei toimi kaupan osapuolena.
Tarjoajat sitoutuvat siihen, että heidän yhteystietonsa voidaan luovuttaa Huutokaupat.comin toimesta ilmoittajalle myyntipäätöksen ja siitä tiedottamisen mahdollistamiseksi.
Kohteeseen tutustuminen
Huutajalla on ennen tarjouksen tekemistä velvollisuus tutustua kyseiseen kiinteistöön, dokumentteihin ja asiakirjoihin. Ostaja ei voi jälkikäteen vedota sellaiseen seikkaan, joka olisi ennakkotarkastuksessa voitu havaita.
Myyjän antamat tiedot
Sastamalan kaupunki vakuuttaa antaneensa ostajalle kaikki tiedot, jotka myyjä tietää ja joiden voidaan olettaa vaikuttavan kauppaan.
Kaupan solmiminen
Ostajan tulee ennen kaupantekoa esittää hyväksyttävä kirjallinen selvitys kiinteistön tulevasta käyttötarkoituksesta. Kiinteistön kauppa tehdään maakaaressa säädetyssä muodossa. Kauppakirjan allekirjoittamisajankohta ja paikka sovitaan ostajan kanssa erikseen. Kauppahinnan maksaminen tapahtuu kaupantekotilaisuudessa. Kaupanvahvistajan palkkion maksaa myyjä.
Muut kustannukset
Ostaja vastaa kulloinkin voimassa olevan verokäytännön mukaisesta varainsiirtoverosta. Ostaja vastaa määräalan kiinteistönmuodostuskustannuksista.
Kaupasta vetäytyminen
Mikäli korkeimman sitovan tarjouksen tehnyt tekee aiheettoman tarjouksen, hänen on maksettava 30 vrk:n kuluessa 20% (huutohinnasta) tai kuitenkin vähintään 3 000 euroa myyjälle sanktiomaksua.
Kauppakirja tulee allekirjoittaa 30 vrk:n kuluessa myyjän lainvoimaisen myyntipäätöksen jälkeen. Määräajan ylittäminen voi johtaa korvausvelvollisuuteen. Sanktiomaksu on 20% (huutohinnasta).
Ilmoituksia tällä hetkellä 2 kpl
Ilmoittajalla ei ole yhtään palautetta viimeisen vuoden ajalta
Aikaa jäljellä
Kohdenumero: 5890566
Katsottu 100 kertaa
Kohteeseen voi tutustua ulkoisesti omatoimisesti. Kiinteistön tarkemmasta esittelystä voi sopia kiinteistönhoitajan kanssa, puh. 0500 483798
Maksutapa sovitaan myyjän kanssa erikseen.
17.11.2025 klo 16.05
Ilmoituksia tällä hetkellä 2 kpl
Ilmoittajalla ei ole yhtään palautetta viimeisen vuoden ajalta
Pellon kunta myy
20 500 €
10 tarjousta
1 pv 7 t
Aikaa jäljellä
Ulosottolaitos, Helsingin toimipaikka myy
9 000 €
9 tarjousta
1 pv 20 t
Aikaa jäljellä
Ulosottolaitos, Varsinais-Suomen toimipaikat myy
8 000 €
14 tarjousta
2 pv 4 t
Aikaa jäljellä
Isännöitsijätoimisto Seppo Simola Oy myy
120 €
3 tarjousta
2 pv 5 t
Aikaa jäljellä
Ulosottolaitos, Tampereen toimipaikka myy
28 200 €
7 tarjousta
4 pv 0 t
Aikaa jäljellä
Porin evankelis-luterilainen seurakuntayhtymä myy
8 500 €
16 tarjousta
4 pv 22 t
Aikaa jäljellä
Porin evankelis-luterilainen seurakuntayhtymä myy
1 500 €
3 tarjousta
5 pv 1 t
Aikaa jäljellä
Virtain Powerteam Oy myy
645 000 €
Lähtöhinta
5 pv 7 t
Aikaa jäljellä
Rauman seurakunta myy
15 500 €
4 tarjousta
5 pv 22 t
Aikaa jäljellä
Kiinteistö Oy Kyröskosken Säästökulma myy
20 000 €
Lähtöhinta
7 pv 5 t
Aikaa jäljellä
Orimattilan kaupunki myy
6 000 €
3 tarjousta
7 pv 6 t
Aikaa jäljellä
Ulosottolaitos, Helsingin toimipaikka myy
3 656 €
6 tarjousta
8 pv 4 t
Aikaa jäljellä
Joensuun kaupunki myy
92 000 €
Lähtöhinta
8 pv 6 t
Aikaa jäljellä
Rautjärven kunta myy
10 000 €
4 tarjousta
10 pv 4 t
Aikaa jäljellä
OP Koti Keski-Suomi Oy LKV myy
130 000 €
Lähtöhinta
10 pv 5 t
Aikaa jäljellä
Forest Team Hassinen Oy myy
2 000 €
4 tarjousta
10 pv 7 t
Aikaa jäljellä
Lapin yliopisto myy
20 000 €
Lähtöhinta
11 pv 5 t
Aikaa jäljellä
Tohmajärven kunta myy
2 000 €
4 tarjousta
11 pv 22 t
Aikaa jäljellä
As Oy Lappeenrannan Vainikkalan Rajamiehentie myy
0 €
Lähtöhinta
12 pv 4 t
Aikaa jäljellä
Sastamalan kaupunki myy
0 €
Lähtöhinta
29 pv 4 t
Aikaa jäljellä